Трансформаторная подстанция киоскового типа
от 16 до 2500 кВа
Назначение и область применения
Комплектные трансформаторные подстанции (КТП) предназначены для приема, транзита, преобразования и распределения электрической энергии трехфазного переменного тока 50 Гц номинальным напряжением 6-10кВ.

КТП используются для электроснабжения объектов гражданского строительства, промышленности и сельского хозяйства, а также небольших населенных пунктов.

КТП не предназначены для работы в среде, подвергающейся усиленному загрязнению, действию газов, испарений и химических отложений, вредных для изоляции, а также в пожароопасной и взрывоопасной среде.
Основные характеристики КТП
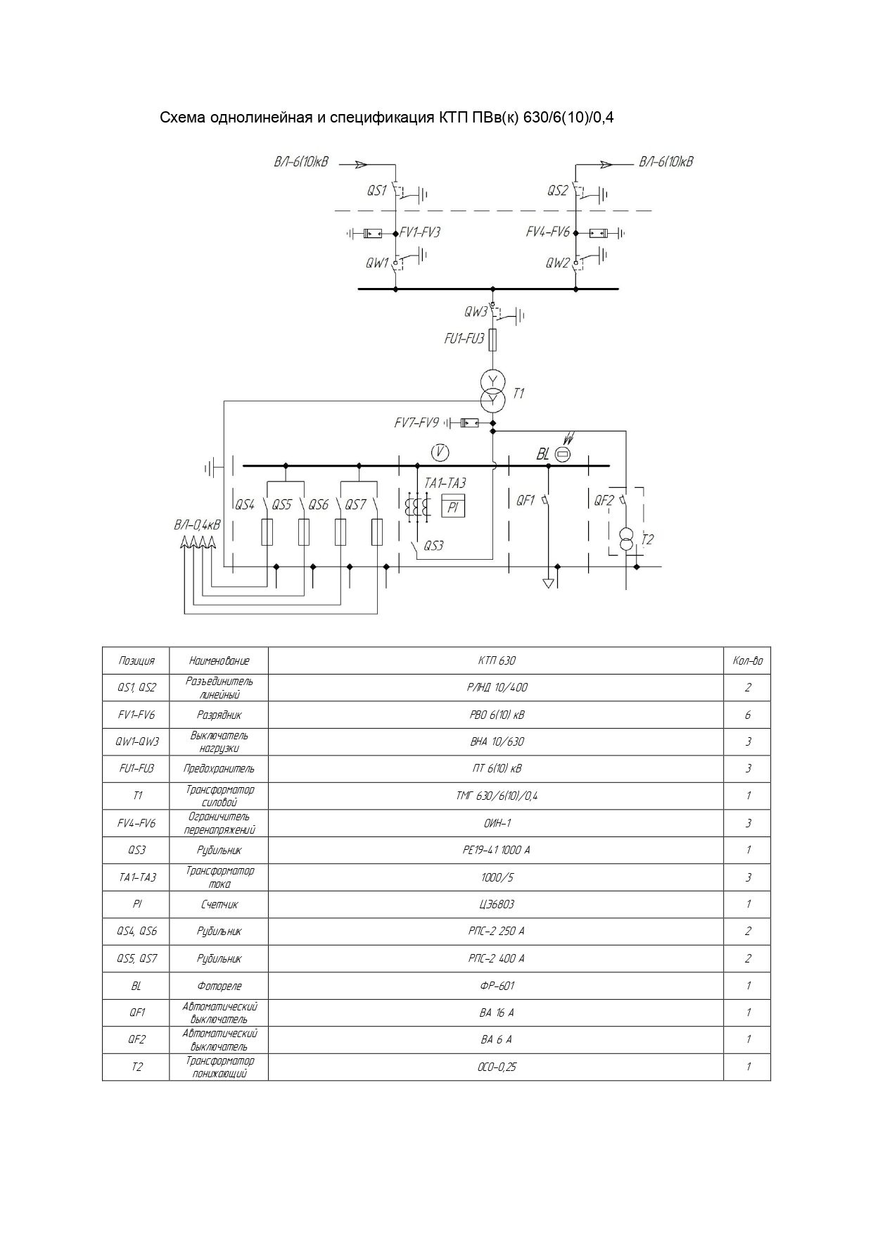
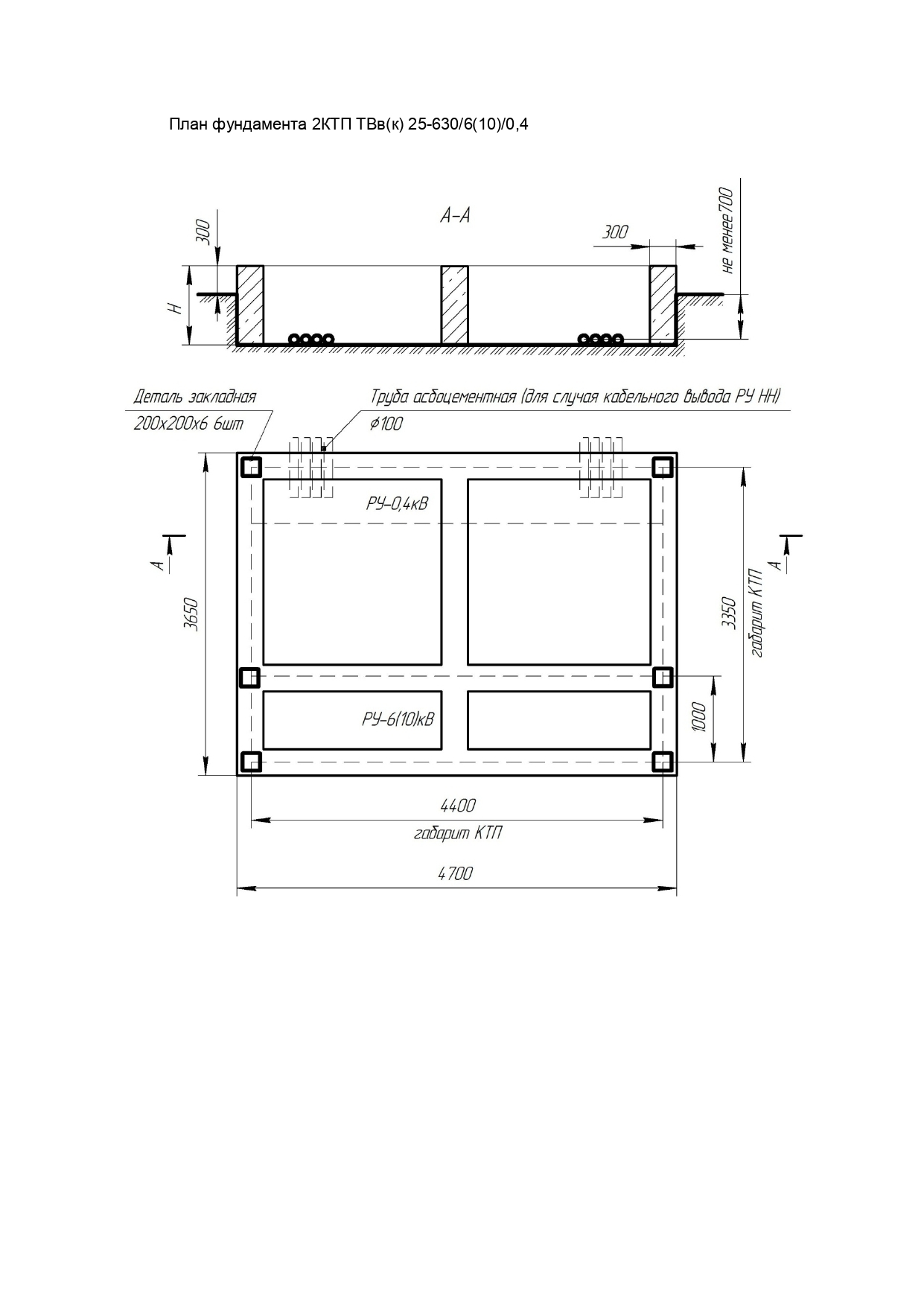
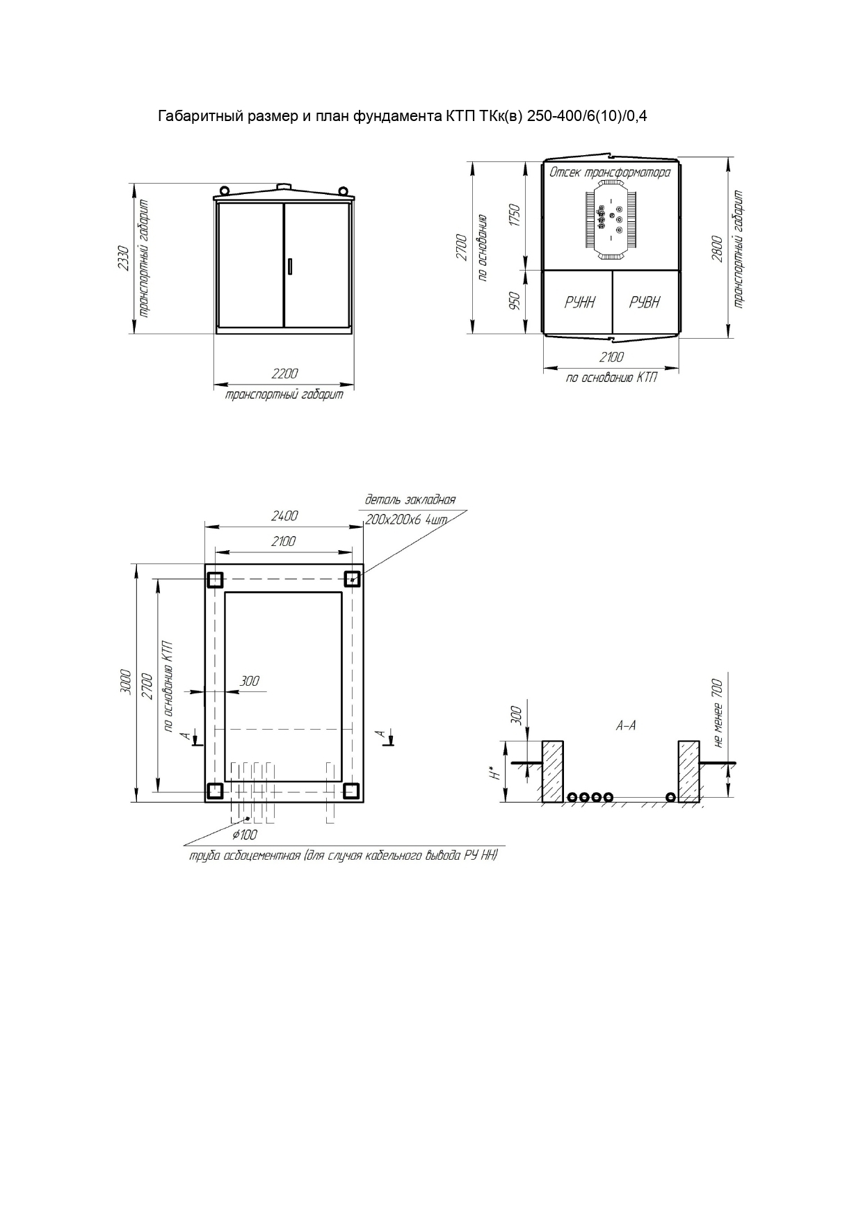
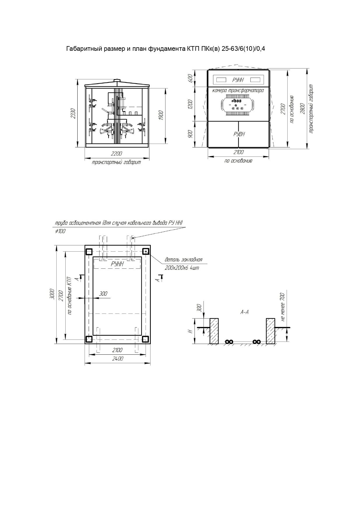
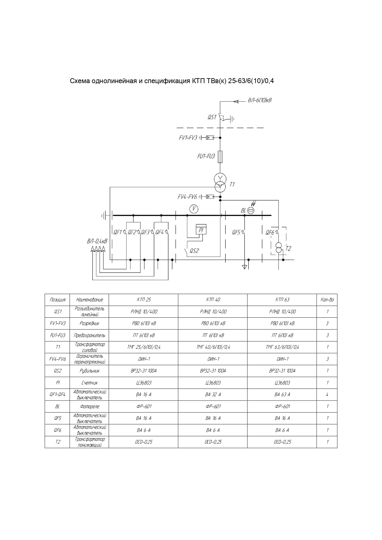
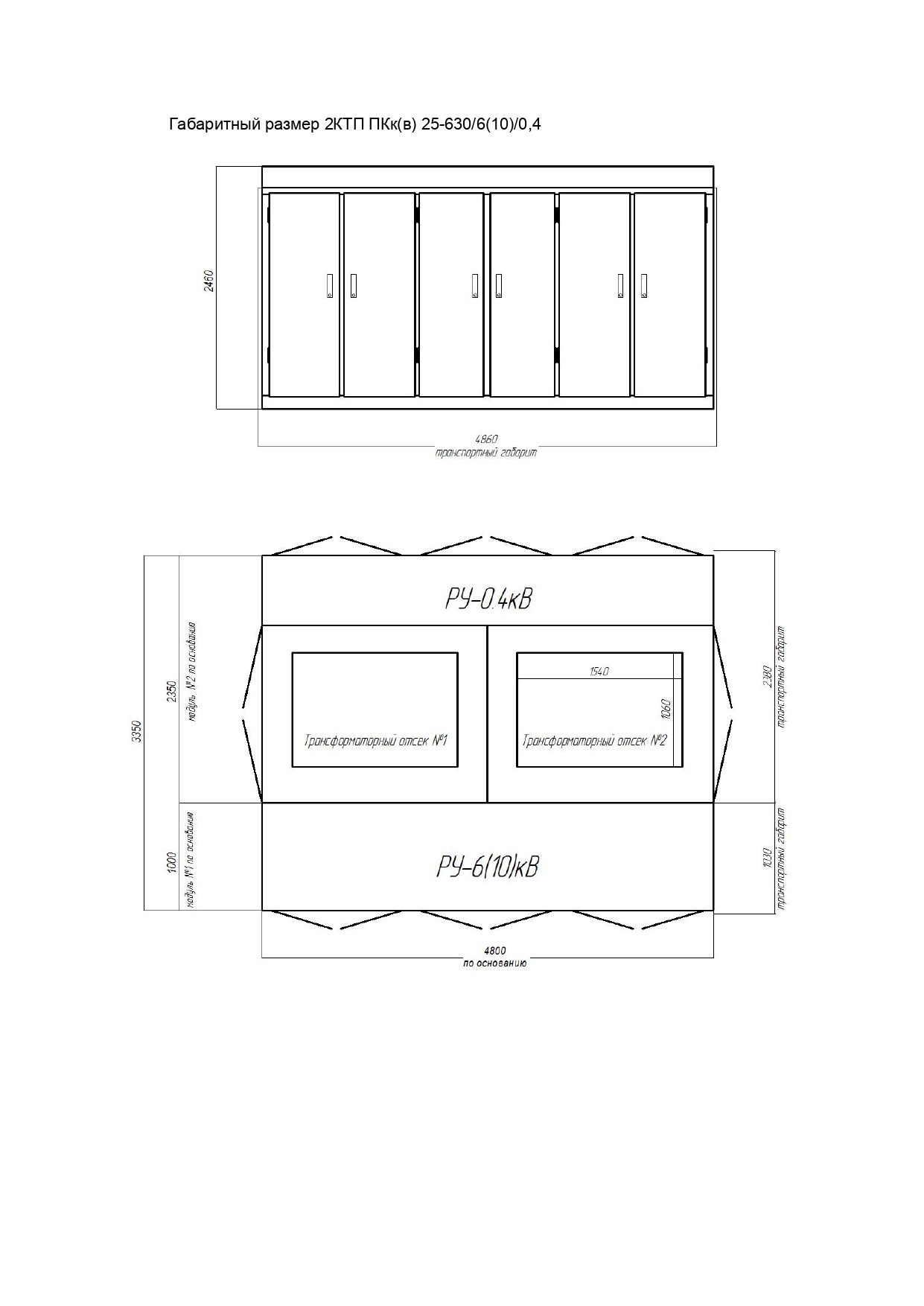
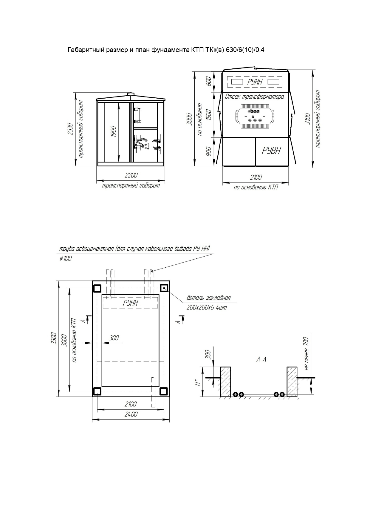
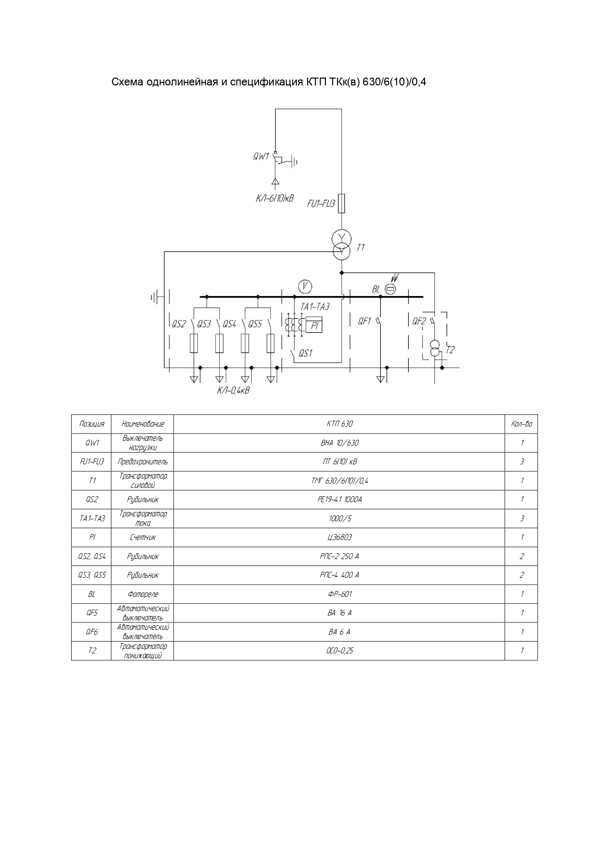
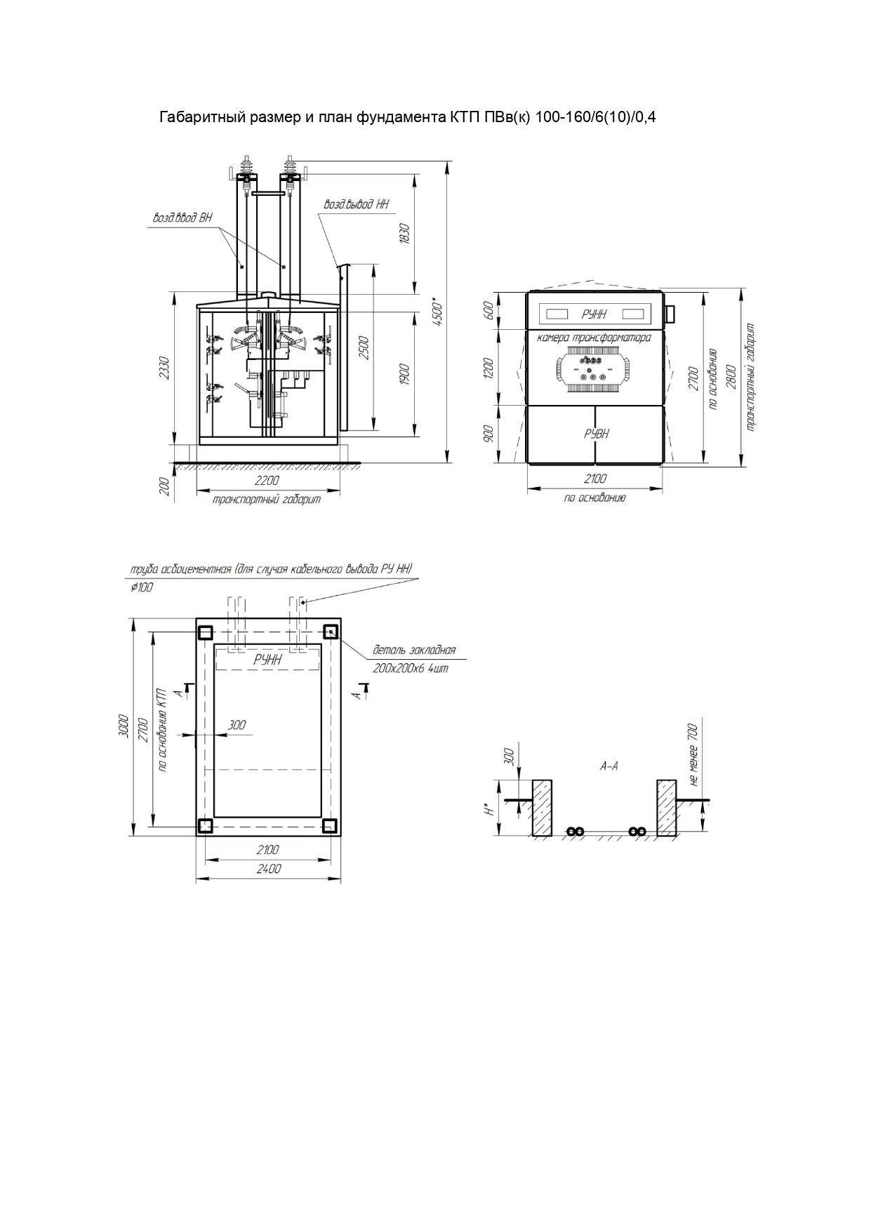
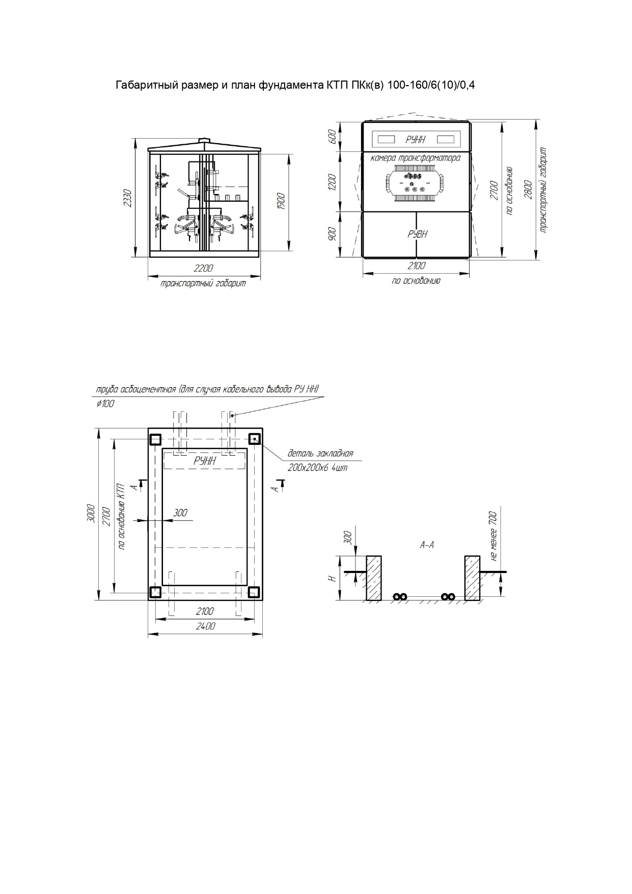
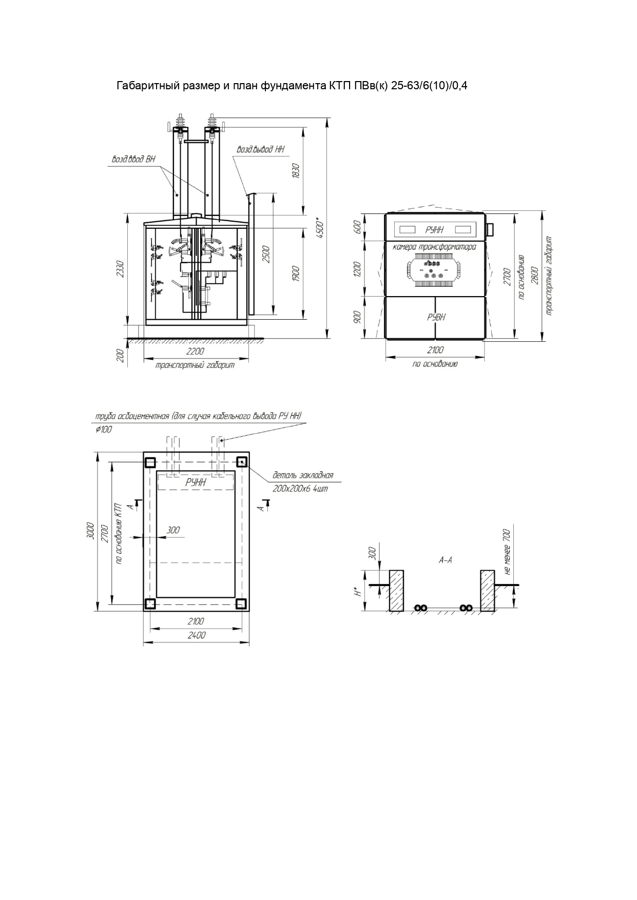
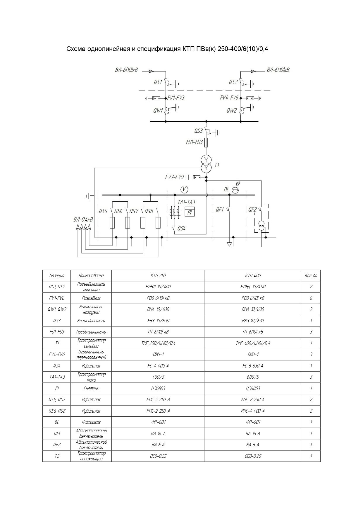
Конструкция КТП представляет собой стальной сварной корпус, состоящий из трансформаторного отсека и отсеков распределительных устройств высокого и низкого напряжения (РУВН и РУНН). Электроэнергия напряжением 6(10) кВ подводится к воздушному или кабельному вводу РУВН и далее подается на силовой трансформатор. Преобразованная электроэнергия напряжением 0,4 кВ поступает на ввод РУНН и далее распределяется по отходящим линиям. РУВН может быть выполнено на базе выключателей ВНА или BB/tel. РУНН может быть выполнено на базе автоматических выключателей и/или рубильников. КТП киоскового типа устанавливается на бетонное основание (фундамент).

КТП имеет устройства, обеспечивающие защиту от перегрузок, КЗ (короткого замыкания) и защиту от перенапряжений. Подстанция обеспечивает коммерческий и/или технический учет электрической энергии на стороне ВН и/или НН (высокого и/или низкого напряжения) с помощью счетчика и соответствующих трансформаторов.

КТП также может иметь ящик собственных нужд, фидер уличного освещения, который включается и отключается автоматически по сигналу реле, приборы контроля силы и напряжения тока, электрические и механические блокировки, обеспечивающие безопасную работу обслуживающего персонала.

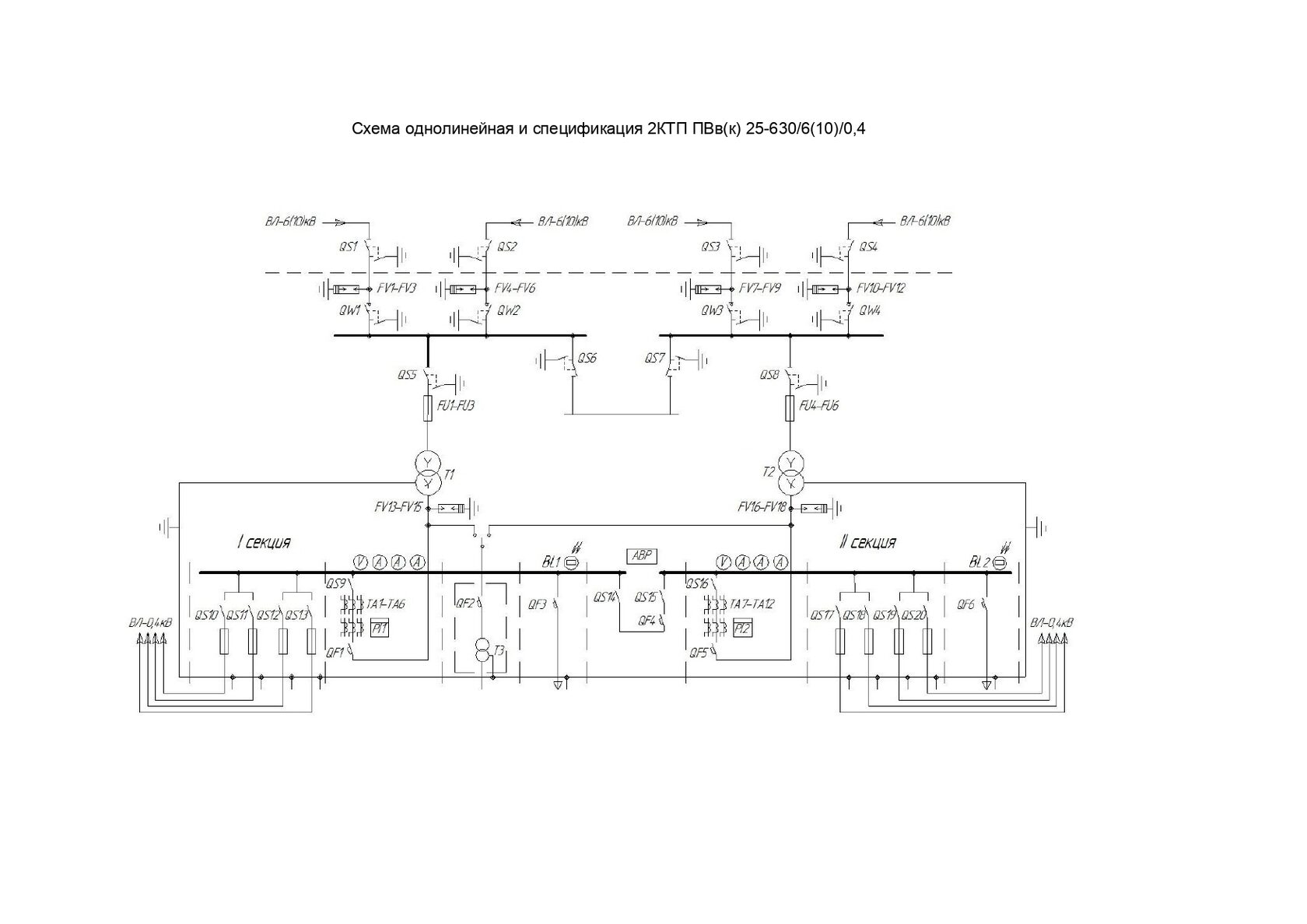
Для 2-х трансформаторных КТП на стороне высокого и низкого напряжения может быть установлено устройство АВР (автоматического ввода резерва) для секционирования сети с целью повышения надежности электроснабжения на случай выключения одного из трансформаторов.

КТП поставляются полностью укомплектованными всей необходимой аппаратурой и готовыми для монтажа и подключения. Силовые трансформаторы могут входить или не входить в комплект поставки в зависимости от требований заказчика.

Подстанции выполняются по тупиковой или проходной схеме с воздушным и/или кабельным исполнением вводов ВН и НН (высокого и низкого напряжения). При воздушном вводе КТП подключается к ЛЭП через устанавливаемые на опоре высоковольтные разъединители, которые могут поставляться вместе с КТП в зависимости от требований заказчика.

Климатическое исполнение У1 или УХЛ1 по ГОСТ 15150 и ГОСТ 15543.1, температура окружающей среды от -40°С до +40°С (У1), от -60°С до +40°С (УХЛ1), высота над уровнем моря не более 1000м.
Однотрансформаторные КТП

Киосковые КТП тупикового типа с воздушным вводом
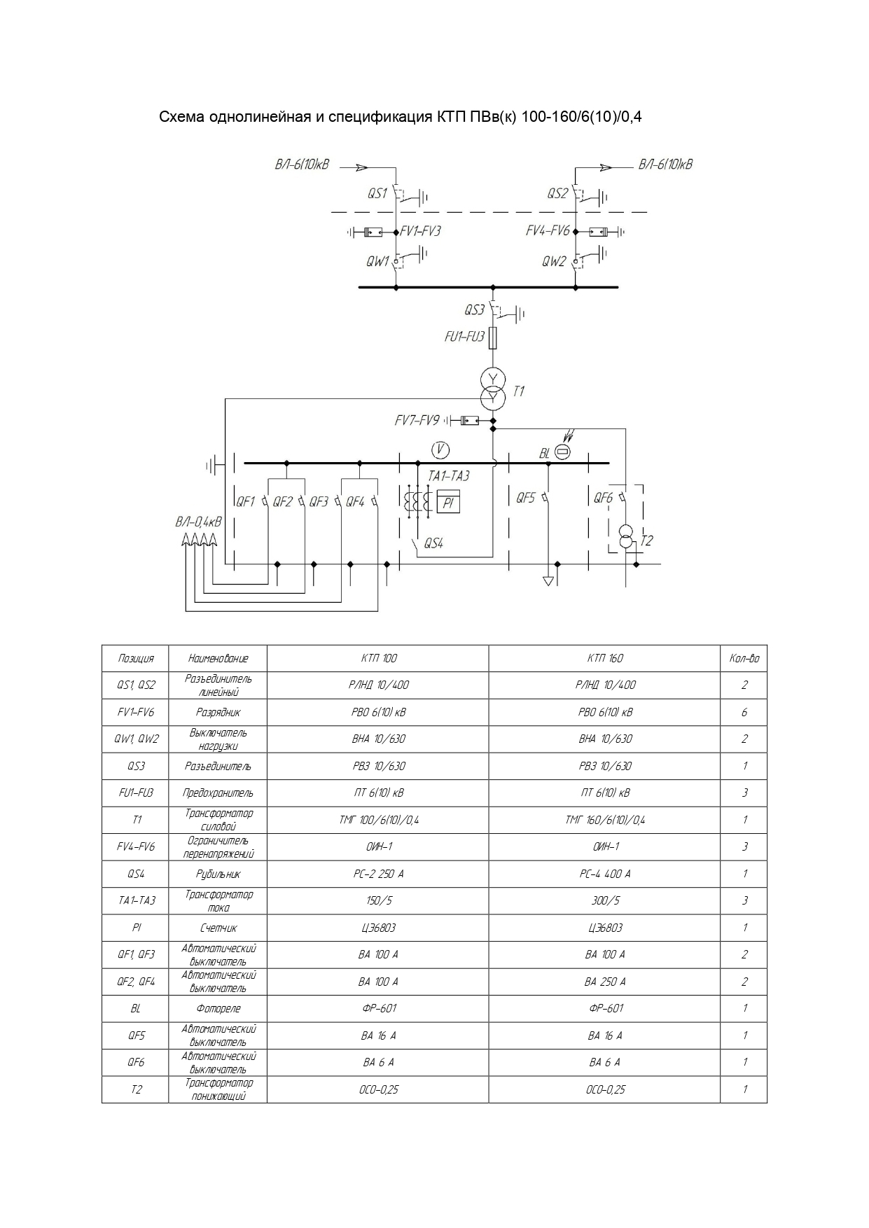
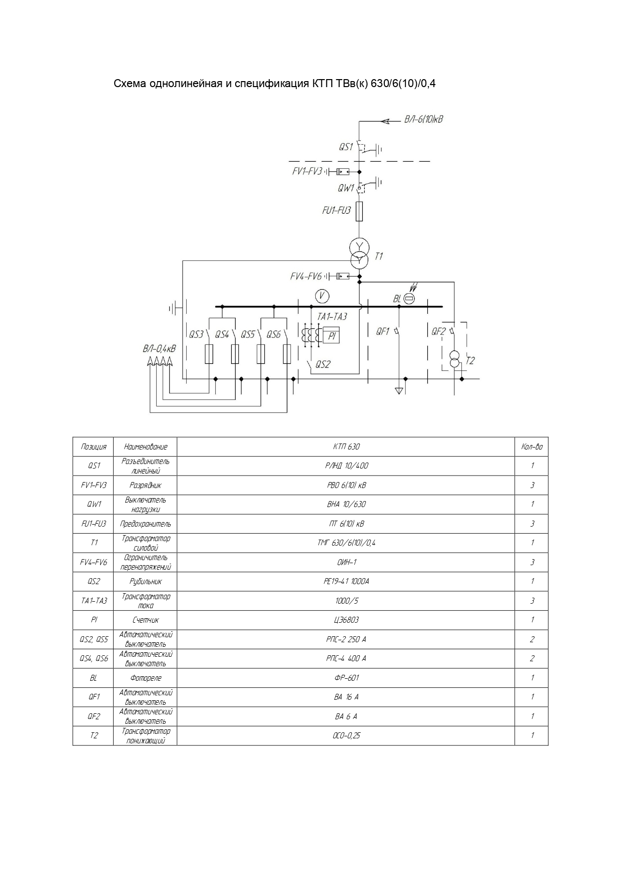
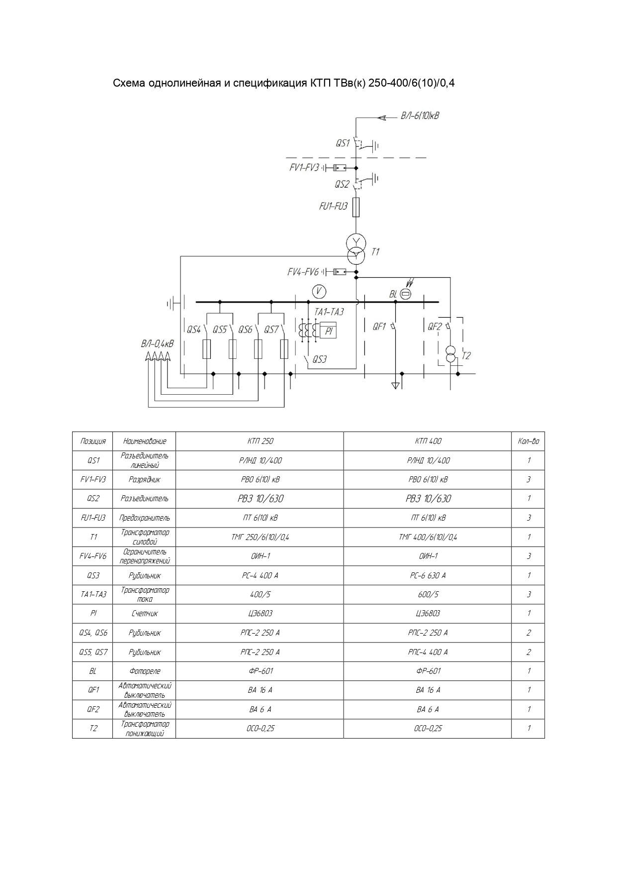
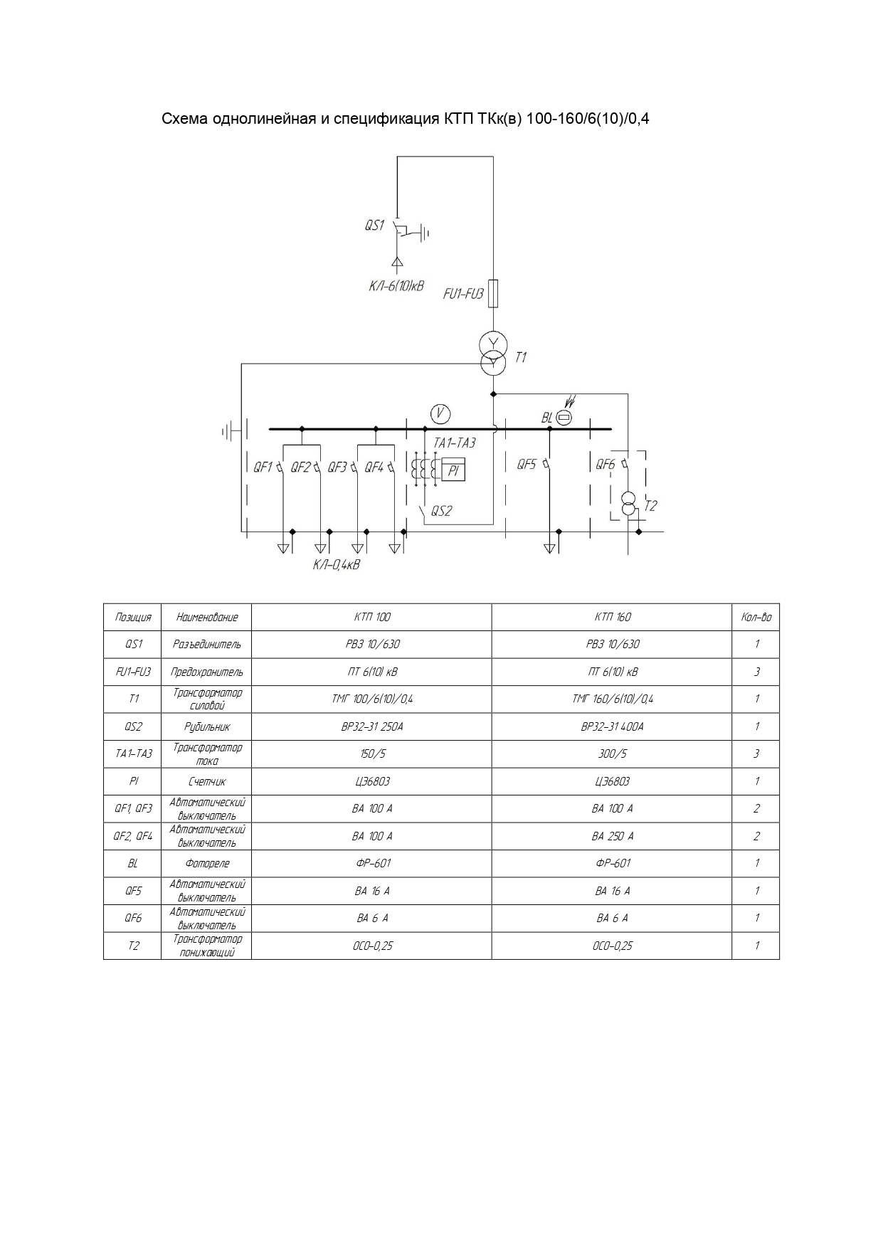
Типовые схемы и спецификации
Киосковые КТП тупикового типа с кабельным вводом
Типовые схемы и спецификации
Киосковые КТП проходного типа с воздушным вводом
Типовые схемы и спецификации
Киосковые КТП проходного типа с кабельным вводом
Типовые схемы и спецификации
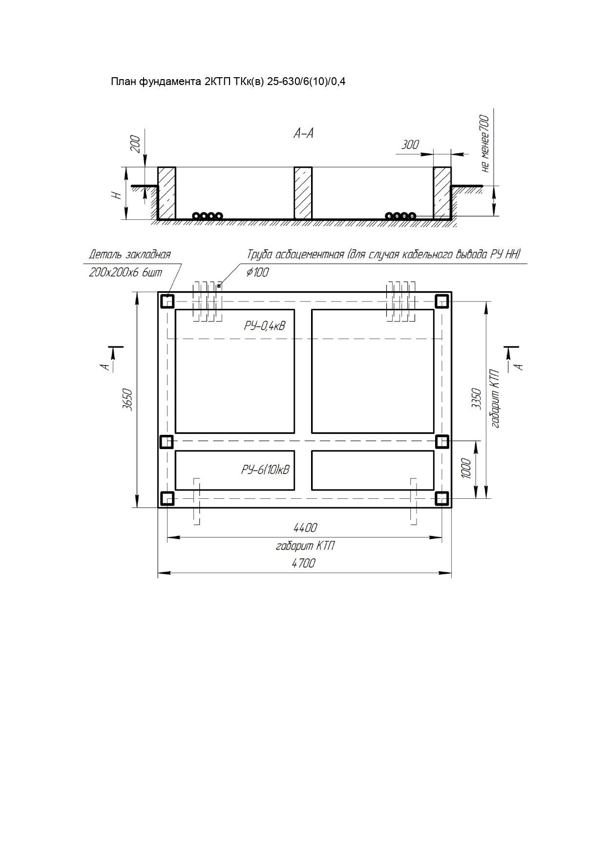
Двухтрансформаторные КТП
Для 2-х трансформаторных КТП (2КТП) на стороне высокого и низкого напряжения может быть установлено устройство АВР (автоматического ввода резерва) для секционирования сети с целью повышения надежности электроснабжения на случай выключения одного из трансформаторов.
Киосковые 2КТП тупикового типа с воздушным и кабельным вводом
Типовые схемы и спецификации
Киосковые 2КТП проходного типа с воздушным и кабельным вводом
Типовые схемы и спецификации
Гарантия 5 лет
Доставка в любую точку РФ
Товар сертифицирован
Почему выбирают нас?
Высокое качество
Мы используем современное производственное оборудование, качественные комплектующие и материалы.
Комплектность поставки
КТП полностью укомплектованы всей необходимой аппаратурой и готовы для монтажа и подключения.
Скорость
Свой склад комплектующих и отлаженная работа с поставщиками позволяют оперативно выполнять заказы.
Made on
Tilda